Home
News
Sport
What’s On
Send your story
Offers
Subscription
Jobs
Public Notices
More
999
Persistent Bodmin menace remanded in custody after latest crime spree
Cornwall's impact on Sir Alf Ramsey to be explored in fundraising talk
Dillon Newton wins gold at WorldSkills
Bodmin Age Concern presented with cheque after Wassail donation
Wadebridge property shut down due to antisocial behaviour
Police seek help after Bodmin trailer theft
Equine therapy centre seeks support after storm devastates barn
Quiet meet up for introverts
Camel Trail closures in February and March
Students were inspired by Dragons' Den entrepreneur Lisa Hicks who travelled to Cornwall from Wales to hear as pitches for business ideas.
Entertainment
NCB Radio: 'Proper music for proper people' since 2011
Investigation launched after organised crime gang raid properties
Persistent Bodmin criminal arrested again despite banning order
Camel Viaduct project faces delays
Bodmin Wassail raises £888 for charity
NCB Radio: 15 years of broadcasting and still 'alive and kicking'
Bodmin's Fore Street to close for Christmas light removal
Two vehicles involved in Bodmin collision amid 'black ice' warnings
Cornwall Council state 'concerns' over impact of distillery plans
A project featuring the Earthshot Prize Finalist Living Seawalls has completed its installation at Padstow Harbour, introducing innovative ecological tiles to enhance marine biodiversity.
Wadebridge's festive cheer at Betjeman Centre
Firefighter celebrates 10 years of saving lives
North Cornwall Hunt raise money at Royal Cornwall Showground
Historic Cornish event returns to Bodmin
Planning
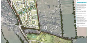
More than 120 'affordable' homes approved by Cornwall Council
Councillors approve Cornwall Council scheme for 71 flats
Owned or licensed to Tindle Newspapers Ltd. | Independent Family-Owned Newspapers | Copyright & Trade Mark Notice & 2013 - 2026