A PLANNING application for a trunk road services area on land at Tregadillett Road, Kennards House, is to be submitted by Westpoint Associates Ltd.
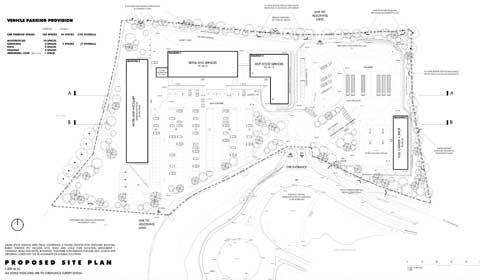
The application for outline planning permission is being sought for a Trunk Road Services Area (TRSA) comprising a filling station with ancillary building, public services (to include toilets, wash and child care facilities), restaurant / takeaway, retail and hotel buildings, together with parking for cars, HGV, coach and abnormal loads and the re-alignment of a public footpath.
Included in the non-technical summary provided by Westpoint Associates, is a parking management plan. In this it states that in total there could be just over 200 parking spaces.
For the full report, please see this week's edition of the 'Post'.





Comments
This article has no comments yet. Be the first to leave a comment.