A NEW retailer could be coming to town as negotiations continue in an effort to unlock plans for a Launceston branch of Home Bargains.
Launceston could soon see a new store open its doors as Cornwall Council has said it is in “advanced negotiations” to deliver infrastructure for a new Home Bargains store within the town.
With plans first submitted at the end of 2022 (PA22/09900), residents have been keen to see the arrival of this long-awaited addition to the local retail landscape. However, for the past four years, the plans appeared to be stuck in limbo, with limited updates surfacing.
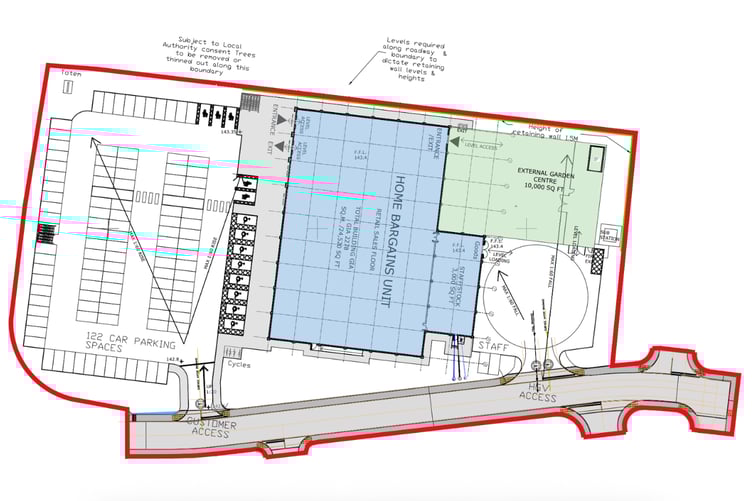
Plans would see the store situated along the Link Road on the south of the town.
WPL consulting, who are leading the application, explained that: “A high quality, comprehensive development is to be brought forward. The objective is to provide a good quality retail unit to this vacant site, providing local residents with choice of provision as well as creating new full and part-time jobs. The development will allow Home Bargains to trade from the unit.”
The proposed unit would comprise of an internal area of 2,278 metres square alongside 122 outside parking spaces including eight oversized disabled, and five parent and child parking.
However, despite years of limited progress, this week, Cornwall councillor Damon Dennis has confirmed that work is progressing well.
He said: “Cornwall Council is currently in advanced negotiations with a third party to deliver the initial infrastructure works. These works include completion of the site access from the Link Road, construction of the first section of the internal spine road to open up both the housing and commercial parcels, and installation of key utility connections.
“Once a contract is secured for the core infrastructure works, TJ Morris is expected to proceed with construction of its consented ‘Home Bargains’ store.”





Comments
This article has no comments yet. Be the first to leave a comment.